Продам будинок у Соборному районі 215 м2. меблі, техніка, ремонт. (№ 22-369-944)
Ціна: 290 000 $

Адреса: 9 січня, Дніпро, Дніпропетровська, Соборний, ж/м Перемога 4,5,6
Характеристики
| Ціна: | 290 000 $ |
|---|---|
| № об'єкта: | 22-369-944 |
| Тип: | будинок |
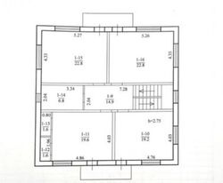
| Поверхів: | 2 |
| Спалень: | 7 |
| Площа будинку: | 215 м2 |
| Ділянка: | 9 сот |
Опис
Продам будинок у Соборному районі 215 м2. меблі, техніка,
Фундамент1300 мм + подушка бетонна з арматурою під фундаментом.
Товщина стін 400 мм, газоблок, утеплення кам'яна вата 50 мм.
Газ, світло, 380v В
Встановлено газовий двоконтурний котел, електрокотел 24 квт. лічильник (день-ніч).
З тераси вхід у надійний підвал
Каналізація автономна.
Навіс під 2 машини з двох сторін будинку виведено воду для миття машини, будинку, Встановлено автоматику на полив. На ділянці посаджені плодові дерева, самшит, туйки, барбарис, блакитні ялинки і т.д.)
сходи виконані з твердих, дорогих порід дерева.
Сад, город, Підсобні приміщення, Тераса, Кондиціонер, Підігрів підлоги, Автонавіс, Автоматичні ворота, Охорона території, Балкон, Душова кабіна, Цоколь, підвал, Альтанка, мангал, Ванна, Сигналізація, Відеоспостереження, Огорожа;
Комунікації: Каналізація септик, Електрика, Центральний водопровід, Газ, Асфальтована дорога;
Інфраструктура (до 500 метрів): Магазин, кіоск, Аптека, Дитячий садок, Супермаркет, ТРЦ, Парк, зелена зона, Дитячий майданчик, Зупинка транспорту, Відділення пошти, Залі Відділення банку, банкомат, Ресторан, кафе, Кінотеатр, театр, Школа;
Ландшафт (до 1 км.): Річка, Водосховище;
Дом строился с интеллектом и качественно



















